-
Заказчику
-
Исполнителю
-
- Вся БеларусьВыберите город для поиска заказов и строительных услуг
-
-
-
Требуется укладка ламината
Внутренние отделочные работы
Заказчик: Михаил
Минск
-
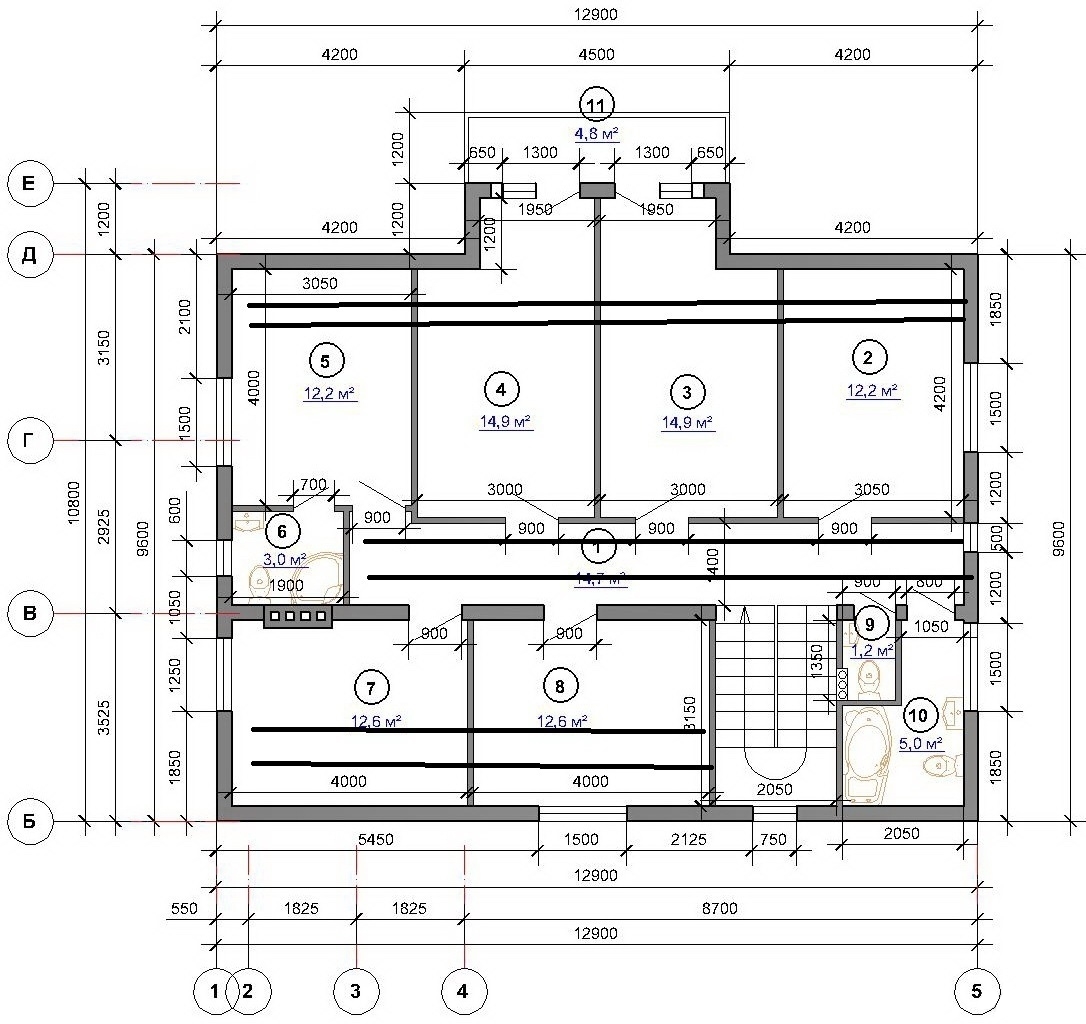
- Требуется опытный специалист для монтажа 100 м2 ламината Kastamonu Floorpan Black FP0048 Дуб Индийский Песочный на подложку листовую толщина 3 мм. Размеры помещений для укладки во вложении. Направление укладки так же указано.
Монтаж ламината желательно выполнить без порожков. Двери будут без порожков. Заделка в 3-х местах примыкания ламината к плитке санузлов с помощью силикона. Основой для монтажа ламината является черновой пол из OSB-плит 22мм, закрепленных с помощью гвоздей и саморезов на двутаврах (перекрытия 1го и 2го этажей).
Доп работы: частичный демонтаж порожков из бруска 100*50 мм. В некоторых местах необходимо подшлифовать место перехода одной OSB-плиты в другую в связи с небольшим перепадом высот. Cм. фото.
Нужен мастер со своим инструментом, включая пылесос. Внимание на качество работ и гарантии.
Обязательно заключение договора.
Работы желательно выполнить до 25.01.2019. Объект находится в 30 км. от МКАД
- Требуется опытный специалист для монтажа 100 м2 ламината Kastamonu Floorpan Black FP0048 Дуб Индийский Песочный на подложку листовую толщина 3 мм. Размеры помещений для укладки во вложении. Направление укладки так же указано.
-
-
- статус заказа: Завершен
-
-
Добавлен: 16.01.19
-
-




